Description..
- EPC Rating: C
- 4 Bedrooms & Attic Room
- 4 Reception Rooms
- Large Garage & Workshop
- Ample Parking
- Private Rear Garden
- Popular Location
- Air Source Heating & Owned Solar Panels
- Double Glazing
- Excellent Location
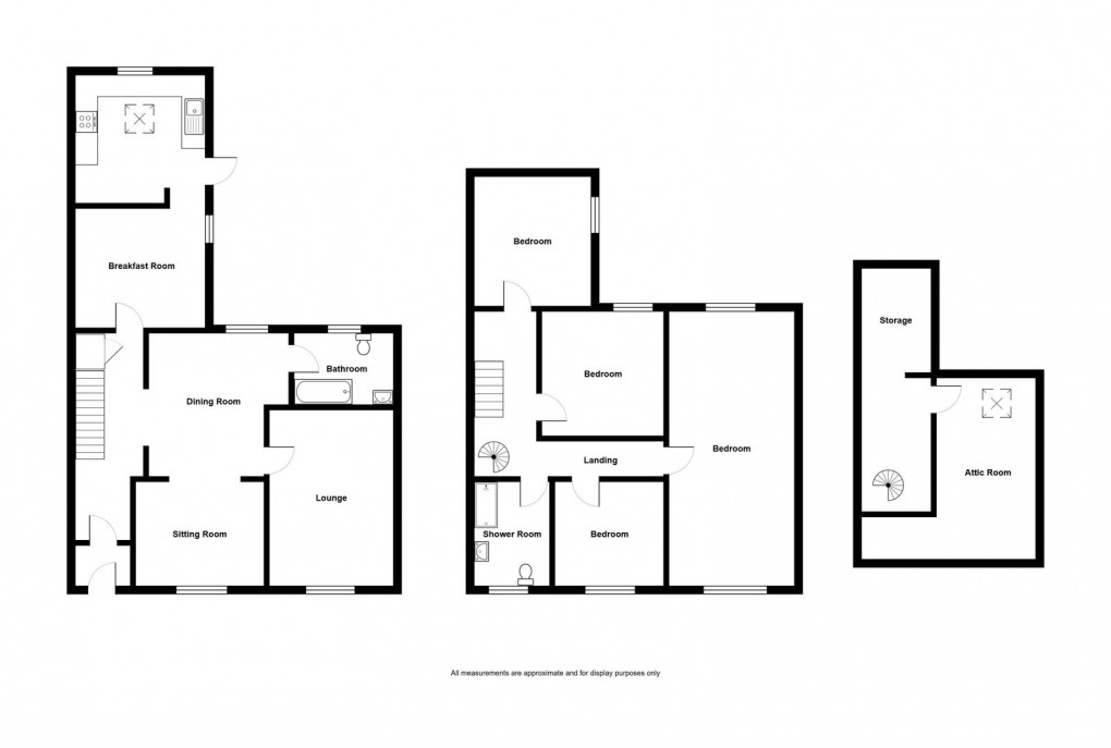
This larger-than-average semi-detached property is located in the Cross Hands area. This ideal family home offers versatile accommodation that includes four reception rooms, a ground-floor bathroom, and a first-floor shower room. Currently set up as a four-bedroom property with an attic room, there is potential to create a fifth bedroom by dividing the master bedroom. The property also benefits from owned solar panels and air source heating. Externally, there is a driveway that provides ample parking, a double garage, and a spacious, fairly level garden—perfect for families. Viewing is essential to appreciate the size and potential of this accommodation.
Cross Hands offers an array of shops, take-away's , cafe's and out of town retailers and is conveniently located to the A48 dual carriageway connection and the M4 motorway via junction 49 at Pont Abraham. Internal viewing is highly recommended to fully appreciate the accommodation and outside space this property has to offer.
Entrance Hallway:
Dining Room: - 3.98m x 3.2m/2.89m (13'0" x 10'5")
Sitting Room: - 3.54m (to chimney breast) x 2.86m (11'7" x 9'4")
Lounge:
Breakfast Room: - 3.7m/3.17m x 2.87m (12'1" x 9'4")
Kitchen: - 3.3m x 2.94m (10'9" x 9'7")
Bathroom: - 2.7m x 1.96m (8'10" x 6'5")
Frist Floor Landing:
Bedroom One: - 7.28m x 3.24m (23'10" x 10'7")
Bedroom Two: - 3.43m x 3.37m/3.01 (11'3" x 11'0")
Bedroom Three: - 3.58m/3.3m x 2.85m (11'8" x 9'4")
Bedroom Four: - 2.9m x 2.66m (to chimney breast) (9'6" x 8'8")
Shower Room - 2.8m x 2.06m (9'2" x 6'9")
Attic Room: - 4.97m x 4.73m/3.34m (16'3" x 15'6")
Externally:
Services:
Tenure:
Council Tax:
Broadband/Mobile Phone Coverage:
Disclaimer:
Floorplan
EPC
To discuss this property call us on:
Market your property
with Calow Evans
Book a market appraisal for your property today. Our virtual options are still available if you prefer.