Description..
- Five Bedroom Semi Detached Home
- Wel Proportioned Rooms
- Two Reception Rooms
- Attic Room
- Ground Floor Shower Room 7 Utility Room
- En-suite To Master Bedroom
- Fitted Wardobes
- Ample Parking
- Semi Rural Village Location
- EPC Rating: 65D/70C
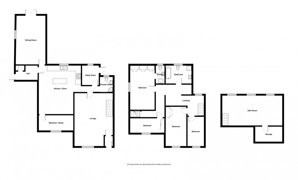
A deceptively spacious five-bedroom semi-detached family home in the semi-rural village of Garnswllt. This larger-than-average property offers versatile accommodation, making it an ideal choice for families. The home boasts five double bedrooms plus a generous attic room with countryside views to the rear. On the ground floor, you’ll find two reception rooms, a shower room, and a cosy lounge complete with log burner. Upstairs, there’s a family bathroom as well as en-suite facilities to the master bedroom. The property benefits from oil-fired central heating and double glazing throughout. Externally, the home offers ample off-road parking, with potential to build a garage (STPP), along with a front and side garden.
Situated in the popular village of Garnswllt, the property enjoys a peaceful semi-rural setting while remaining conveniently close to local amenities. The market town of Ammanford is just a 10-minute drive away, providing a wide range of shopping and leisure facilities. Excellent transport links are also within easy reach, with the M4 motorway accessible via Junction 49 at Pont Abraham.
Viewing is highly recommended to appreciate the size and flexibility this home has to offer.
Accommodation:
Entrance Hallway
Kitchen/Diner - 5.54m x 6.45m (18'2"/14'2" x 21'2")
Bedroom Five/Study - 4.5m x 2.01m (14'9" x 6'7")
Dining Room - 6.43m x 3.58m (21'1" x 11'9")
Utility Room - 2.57m x 2.18m (8'5" x 7'2")
Shower Room
Lounge - 6.63m x 4.9m (21'9" x 16'1"/12'1")
Entrance Vestibule
First Floor Landing
Bedroom One - 4.95m x 3.45m (16'3" x 11'4"/9'10")
Ensuite
Bedroom Two - 4.98m x 2.72m (16'4" x 8'11")
Bedroom Three - 4.52m x 1.91m (14'10"/12'9" x 6'3")
Bedroom Four - 3.81m x 2.16m (12'6" x 7'1")
Bathroom - 3.43m x 2.62m (11'3" x 8'7")
Attic Room - 7.9m x 3.76m (25'11" x 12'4")
Exernally
Services
Broadband/Mobile Phone Coverage
Tenure
Council Tax
Disclaimer
Floorplan
EPC
To discuss this property call us on:
Market your property
with Calow Evans
Book a market appraisal for your property today. Our virtual options are still available if you prefer.