Description..
- No Upper Chain
- Three Bedroom Detached Home
- Ground Floor WC/First Floor Bathroom
- Three Reception Rooms
- Pleasant Rear Garden
- Ample Parking
- LPG Heating & Double Glazing
- Semi Rural Location
- EPC Rating: D
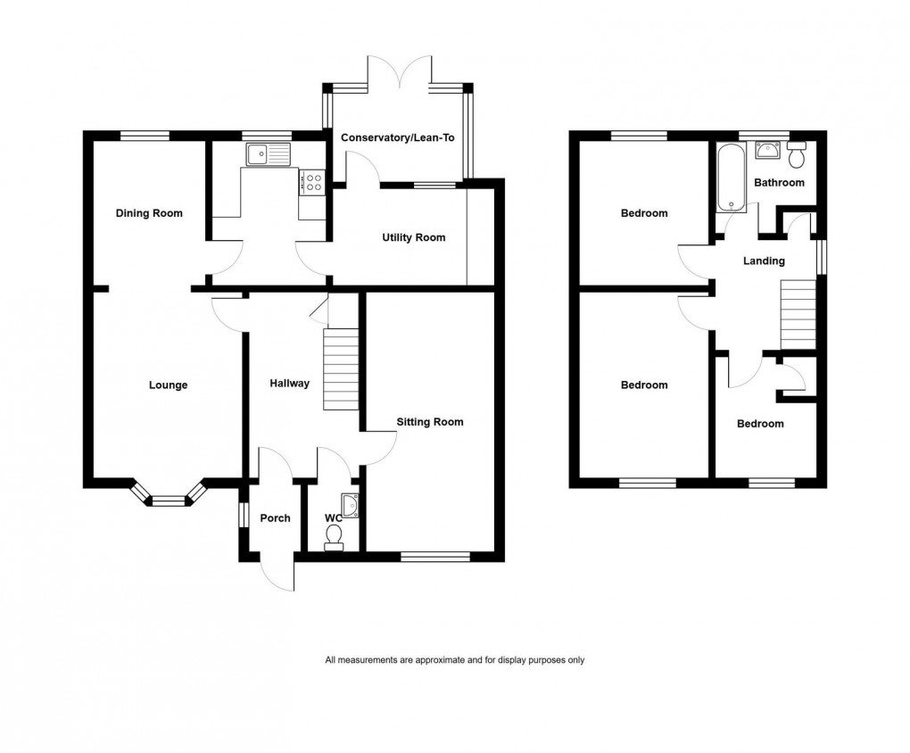
This three-bedroom detached residence is situated in the semi-rural village of Llannon. The property comprises three reception rooms, a conservatory/lean-to, a ground floor water closet, and a first-floor bathroom, providing a spacious and functional living environment. There is potential for extension above the former garage, subject to planning permission, allowing for further customization of the living space. Externally, the property boasts a driveway that accommodates ample parking and features a reasonably private and aesthetically pleasing rear garden.
Llannon is strategically located between Tumble and Swiss Valley, affording convenient access to the A4 corridor, Cross Hands retail parks, and the town centre of Llanelli, along with all associated amenities.
Accomodation:
Entrance Porch
WC
Sitting Room - 5.11m x 2.84m (16'9" x 9'4"/7'11")
Lounge - 4.11m x 3.23m (13'6" x 10'7")
Dining Room - 3.2m x 2.46m (10'6" x 8'1")
Kitchen - 3.2m x 2.46m (10'6" x 8'1")
Utility Room
Conservatory/Lean-To
First Floor Landing
Bedroom One - 4.17m x 2.87m (13'8" x 9'5")
Bedroom Two - 3.2m x 2.69m (10'6" x 8'10")
Bedroom Three - 2.67m x 2.13m (8'9"/5'9" x 7'0")
Bathroom
Externally
Services
Tenure
Broadband/Mobile Phone Coverage
Disclaimer
Floorplan
EPC
To discuss this property call us on:
Market your property
with Calow Evans
Book a market appraisal for your property today. Our virtual options are still available if you prefer.