Description..
- Chain Free
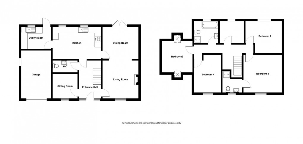
- Well Presented Five Bedroom Home
- Utility Room & Ground Floor WC
- En-suite & FIRST Floor Family Bathroom
- Open Aspect To Rear
- Fairly Private Rear Garden
- Driveway & Integral Garage
- Gas C/h & Double Glazing
- Ideal Family Home
- EPC Rating: C
**No Upper Chain**
This modern five-bedroom detached family home is located on a development on the outskirts of Ammanford town centre. The property features three reception rooms, a ground floor cloakroom, en-suite facilities, and a bathroom on the first floor. Externally, there is a driveway, an integral garage, and an enclosed rear garden that backs onto farmland, providing added privacy to this beautiful family home.
The development is situated on the outskirts of Ammanford town centre which enjoys good shopping and leisure facilities. Access to the M4 motorway would be via junction 49 at Pont Abraham.
Accommodation:
Entrance Hallway
Study - 2.44m x 2.41m (8'0" x 7'11")
Cloakroom
Kitchen - 4.75m x 3.12m (15'7" x 10'3")
Utility Room
Lounge - 3.73m x 3.56m (12'3" x 11'8")
Dining Room - 3.53m x 3.15m (11'7" x 10'4")
First Floor Landing
Bedroom One - 3.78m x 3.53m (12'5" x 11'7")
Ensuite
Bedroom Two - 3.53m x 3.15m (11'7" x 10'4"/7')
Bedroom Three - 2.97m x 2.92m (9'9" x 9'7")
Bedroom Four - 3.68m x 2.46m (12'1"/10'6" x 8'1")
Bedroom Five - 2.26m x 2.18m (7'5" x 7'2")
Externally
Services
Tenure
Council Tax
Disclaimer
Floorplan
EPC
To discuss this property call us on:
Market your property
with Calow Evans
Book a market appraisal for your property today. Our virtual options are still available if you prefer.