Description..
- Four/Five Bedroom Detached Family Home
- Situated On Executive Development
- Two/Three Reception Rooms
- Ground Floor Shower Room & Cloakroom
- En-suite To Master
- First Floor Family Bathroom
- Fairly Private Rear Garden
- Paved Driveway To Front
- Ease Of Access to A48 & M4
- EPC Rating: D
Located in an executive development of similar properties, this ideal family home offers versatile accommodation with five bedrooms, including one on the ground floor. The first floor features en-suite facilities alongside a bathroom. The property includes two additional reception rooms, a ground floor cloakroom, and a shower room on the first floor. Heating is provided by oil-fired central heating, and the home benefits from double glazing throughout. Outside, there is a paved driveway that offers ample parking space, along with an enclosed and relatively private rear garden that boasts an open aspect.
The village of Cwmgwili is conveniently positioned near the M4 motorway and A48 dual carriageway. Nearby, you'll find good shopping facilities, including out-of-town retailers at Cross Hands Business Park, as well as everyday shopping and leisure amenities in Ammanford town centre.
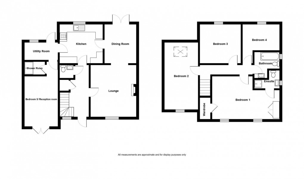
Accommodation:
Lounge - 4.37m x 3.84m (14'4" x 12'7")
Dining Room - 3.28m x 2.69m (10'9" x 8'10")
Kitchen - 3.61m x 3.3m (11'10" x 10'10")
Utility Room
Shower Room
Bedroom Five/Reception Room - 4.27m x 2.82m (14'0" x 9'3")
Cloakroom
First Floor Landing
Bedroom One - 5.38m x 3.48m (17'8" x 11'5"/11'1")
Ensuite
Bedroom Two - 4.83m x 2.84m (15'10" x 9'4")
Bedroom Three - 3.43m x 3.15m (11'3" x 10'4")
Bedroom Four - 2.87m x 2.21m (9'5" x 7'3")
Bathroom
Externally
Services
Tenure
Council Tax
Broadband Speed/Mobile Phone Coverage
Disclaimer
Floorplan
EPC
To discuss this property call us on:
Market your property
with Calow Evans
Book a market appraisal for your property today. Our virtual options are still available if you prefer.