-
EPC Rating: E
-
4 Bedroom Family Home
-
3 Bathrooms
-
Excellent Development Potential
-
Ideal Investment Opportunity
-
Acommodation Over 3 Floors
-
Garden & Outbuilding
-
Mains Gas C/H & D/G
-
Side Road Location
-
No Upper Chain
NO UPPER CHAIN.
A substantial three storey property currently arranged as a single dwelling but offering excellent development potential for conversion into multiple self contained flats (stpp). The property boasts generous internal floor space across three levels and a flexible internal layout that lends itself perfectly to reconfiguration. There is gas fired central heating and double glazing to the property.
The village of Brynamman is situated on the edge of The Brecon Beacons National Park which is popular with ramblers, cyclists, horse riders and car enthusiasts also a variety of attractions, stunning landscapes, walks, castles, natural caves, waterfalls and more. The main shopping and leisure facilities are located at Ammanford town centre.
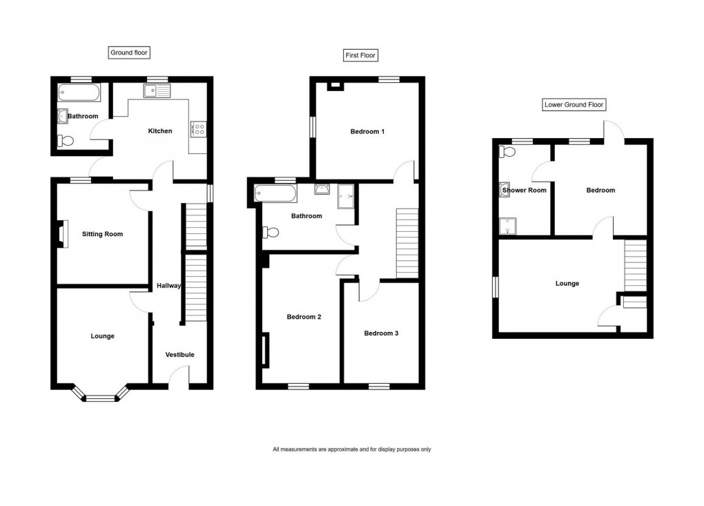
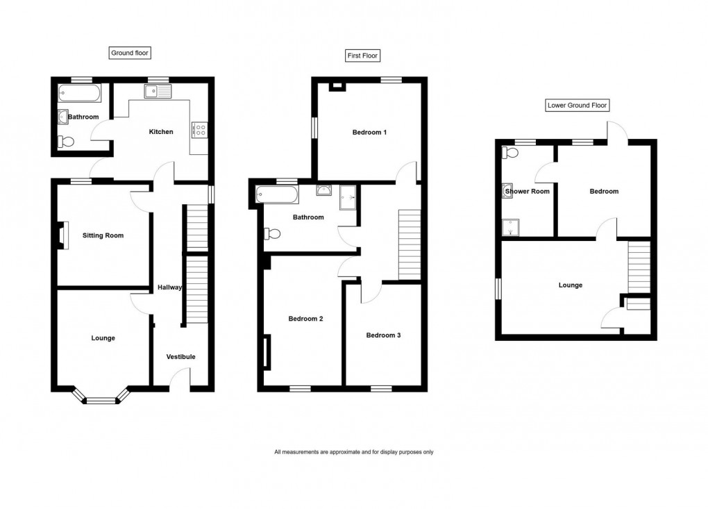
Entrance Vestibule:
Stairs to first floor.
Entrance Hallway:
Double glazed window to side, stairs to lower ground floor, single panel radiator.
Lounge: - 3.71m x 3.33m (12'2" to bay x 10'11")
Double glazed bay window to front, feature ornamental fireplace with wooden surround, double panel radiator.
Sitting Room: - 3.66m x 3.35m (12'0" x 11'0"to chimney breast)
Two double glazed windows to side, double glazed window to rear, laminate flooring, double panel radiator.
Kitchen: - 3.53m x 3.56m (11'7" x 11'3"/11'8")
Double glazed window to rear, double glazed glass panel door to side, fitted with a range of wall and base units, 1½ bowl sink unit and draining board, plumbing for washing machine, electric hob and oven with extractor fan over, part tiled walls, double panel radiator.
Bathroom: - 2.44m x 1.88m (8'0" x 6'2")
Double glazed obscure window to rear, suite comprises panelled bath, WC, pedestal wash hand basin, walls tiled to ceiling, heated towel rail.
First Floor Landing:
Double glazed window to side, entrance to loft, two single panel radiators.
Bedroom One: - 3.78m x 3.63m (12'5"/11'6" x 11'11")
Double glazed windows to side and rear, double panel radiator.
Bedroom Two: - 4.7m x 2.82m (15'5" x 8'11"/9'3")
Double glazed window to front, double panel radiator.
Bedroom Three: - 3.66m x 2.72m (12'0" x 8'6"/8'11")
Double glazed window to front, double panel radiator.
Bathroom: - 3.66m x 1.93m (12'0"/11'1" x 6'4")
Double glazed obscure window to rear, suite comprises panelled bath, WC, pedestal wash hand basin, shower enclosure with tiled splashback, walls tiled to ceiling, heated towel rail.
Lower Ground Floor:
Strorage cupboard.
Lounge: - 5.13m x 3.33m (16'10"/12'3" x 10'11")
Double glazed window to side, laminate flooring, double panel radiator.
Bedroom: - 3.35m x 3.3m (11'0" x 9'0"/10'10")
Double glazed glass door to rear, double glazed windows to rear and side, double panel radiator.
Shower Room: - 2.46m x 1.88m (8'1" x 6'2")
Double glazed obscure window to rear, shower enclosure with tiled splashback, WC, pedestal wash hand basin, walls tiled to ceiling, single panel radiator.
Externally:
Side pedestrian access to the rear garden, side steps giving access to ground floor, rear garden mainly laid to lawn, patio area, detached outbuilding
Services:
We are advised all mains services are connected.
Tenure:
Freehold.
Council Tax:
TCB.
Broadband/Mobile Phone Coverage:
There is ultrafast broadband and mobile phone coverage in the area.
Directions:
From our office in Ammanford proceed to the traffic lights and bear left onto High Street. Proceed out of the town and when reaching the next junction at Pontamman turn left. Continue through the villages of Glanamman and Garnant. On reaching the railway crossing in Gwaun Cae Gurwen turn left signposted Brynamman. Continue through until reaching the sharp right hand bend in Upper Brynamman and turn left. Follow the road whereby the property will be located on the left hand side.
Disclaimer:
Every care has been taken with the preparation of particulars however please note room dimensions and floor plan's should not be relied upon and any appliances or services listed on these details have not been tested.