-
EER
-
3 Double Bedrooms
-
Ample Living Space
-
Gas C/H & D/G
-
2 Reception Rooms
-
First Floor Bathroom
-
Ideal Family Home
-
Good Sized Garden
-
Outskirts Of Town
-
No Upper Chain
NO UPPER CHAIN.
A mid terraced property offers generous proportioned accommodation throughout making it ideal for families or those seeking ample living space. The well-designed layout features spacious reception rooms, three double bedrooms and practical storage solutions. Each room benefits from comfortable dimensions allowing for flexible furniture arrangements and effortless everyday living. The property combines size, comfort and functionality to create an inviting and versatile home. Externally a good sized garden which benefits from pedestrian access to the rear of the neighbouring property.
The village of Betws is situated at the foot of Betws Mountain and convenient to Ammanford town centre which offers good everyday shopping and leisure facilities. Access to the M4 motorway is via junction 49 at Pont Abraham. Internal viewing is recommended.
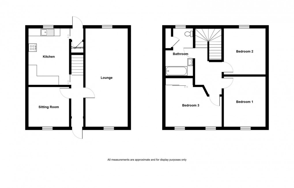
Accommodation
Entrance Hallway:
Stairs to first floor, single panel radiator.
Lounge/Dining Room: - 7.21m x 3.07m (23'8" x 10'1")
Double glazed windows to front and rear, traditional tile fireplace with coal effect electric fire, two double panel radiators.
Sitting Room: - 2.97m x 2.9m (9'9" x 9'6")
Double glazed window to front, feature alcoves with shelving, single panel radiator.
Kitchen/Breakfast Room: - 4.11m x 2.95m (13'6" x 9'8")
Double glazed window to rear, fitted with a range of wall and base units, single bowl sink unit and draining board, plumbing for washing machine, gas boiler providing domestic hot water and central heating, part tiled walls, double panel radiator.
Rear Lobby:
Double glazed glass panel door to rear, understairs storage cupboard.
First Floor Landing:
Double glazed window to rear.
Bedroom One: - 3.71m x 3.05m (12'2" x 10'0")
Double glazed window to front, picture rail, single panel radiator.
Bedroom Two: - 3.45m x 3.18m (11'4" x 10'5")
Double glazed window to rear, picture rail, single panel radiator.
Bedroom Three: - 4.09m x 2.84m (13'5" x 9'4")
Two double glazed windows to front, fitted wardrobes, single panel radiator.
Bathroom: - 3.51m x 2.01m (11'6" x 4'9"/6'7")
Double glazed obscure window to rear, suite comprises panelled bath, WC, pedestal wash hand basin, airing cupboard housing hot water tank, part tiled walls, single panel radiator.
Externally:
A low maintenance enclosed frontage, a good sized garden to the rear laid to lawn and gravel, elevated patio area. Please note the property enjoys pedestrian access to the rear of the neighbouring property.
Services:
We are advised all mains services are connected.
Tenure:
Freehold.
Council Tax:
B.
Broadband/Mobile Phone Coverage:
There is superfast broadband and mobile phone coverage in the area.
Directions:
From our office in Ammanford proceed to the traffic lights bearing right onto Wind Street. Proceed to the roundabout and take the first exit, continue straight through the next roundabout in the direction of Tesco's. Take the first exit on the roundabout and then the second right exit at the next roundabout signposted Betws. Continue up the hill and when reaching the sharp right hand bend turn left onto Colonel Road. Proceed on this road taking the right turning onto Heol Y Felin whereby the property will be located on the right hand side.
Disclaimer:
Every care has been taken with the preparation of particulars however please note room dimensions and floor plan's should not be relied upon and any appliances or services listed on these details have not been tested.