Description..
- Three story town house.
- Conveniently located to llanelli town centre and Trostre retail park.
- Garage and Parking for 2/3 cars.
- Ideal Family home.
- Cloakroom, bathroom and ensuite.
- Popular Location.
- Large Master bedroom and ensuite.
- Excellent transport links
- Council tax band D
- EPC rating C
We are delighted to offer this modern 4 bedroom family townhouse, designed to provide spacious living . The property features a welcoming lounge, along with a open plan kitchen and dining area, ideal for everyday family life. The master bedroom benefits from its own ensuite shower room, while additional conveniences include a ground floor cloakroom and a well-appointed family bathroom on the first floor. Further advantages include gas central heating and double-glazed windows throughout, ensuring energy efficiency.
Externally, the home boasts a well-maintained rear garden, perfect for outdoor relaxation, as well as a garage and off-road parking for 2/3 vehicles. Situated in a highly sought-after location on the outskirts of Llanelli town, close to Trostre Retail Park, and onward connections to Swansea. The home is also conveniently positioned close to local amenities, including primary and secondary schools, making it an ideal choice for families.
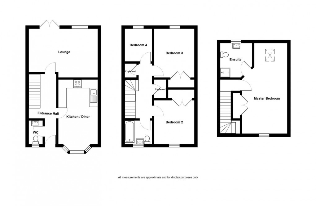
Entrance Hall
Kitchen/Diner - 4.8m x 2.84m (15'9"/14'0 x 9'4")
Lounge - 3.53m x 4.98m (11'7"/10'2" x 16'4")
WC
Bedroom 2 - 3.15m x 2.9m (10'4" x 9'6")
Bedroom 3 - 2.87m x 3.43m (9'5" x 11'3")
Bedroom 4 - 2.36m x 1.98m (7'9" x 6'6")
Bathroom - 1.68m x 1.96m (5'6" x 6'5")
Master Bedroom - 6.53m x 3.28m (21'5"/20.2 x 10'9"/7.09")
Ensuite - 2.54m x 2.49m (8'4"/7.8" x 8'2")
Externally
Services
Tenure
Council Tax Band
Broadband Speed/Mobile Phone Coverage
Disclaimer
Floorplan
EPC
To discuss this property call us on:
Market your property
with Calow Evans
Book a market appraisal for your property today. Our virtual options are still available if you prefer.