Description..
- Newly Constructed Family Home
- Spacious Accommodation
- Four Double Bedrooms
- Two Reception Rooms
- Integrated Appliances In Kitchen/Diner
- Integral Garage & Driveway
- Underfloor Heating To Ground Floor
- Air Source Heat Pump
- Outskirts Of Ammanford Town Centre
- Predicted EPC: C
A newly constructed detached property located on a modern development on the outskirts of Ammanford town centre. This spacious family home offers four double bedrooms, two of which benefit from en-suite shower rooms, along with two reception rooms, a ground floor WC, and a family bathroom to the first floor. The property also features an integral garage, which offers potential for conversion into additional living accommodation, subject to the necessary consents. Further benefits include a ground source heat pump, providing an energy-efficient heating solution. Externally, the property enjoys ample off-road parking to the front, access to the integral garage, and an enclosed rear garden.
The development is conveniently located on the outskirts of Ammanford, a vibrant market town with a strong sense of community. The town offers a wide range of shops, supermarkets, and independent retailers, along with cafés, restaurants, and pubs. Leisure facilities include sports clubs, a swimming pool, and parks, while the nearby Carmarthenshire countryside provides excellent walking and cycling opportunities. Schools, healthcare facilities, and local services are all readily accessible. Excellent road links are available, with access to the M4 motorway via Junction 49 at Pont Abraham, making this an ideal location for commuting to Swansea, Llanelli, and beyond.
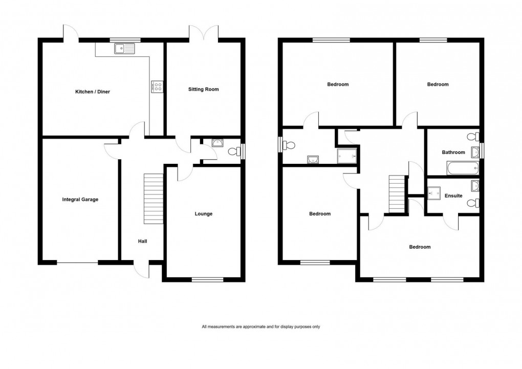
Accommodation:
Entrance Hallway
Kitchen/Diner - 5.89m x 4.55m (19'4" x 14'11"/13'4")
Lounge - 5.38m x 3.58m (17'8" x 11'9")
Sitting Room - 4.52m x 3.58m (14'10" x 11'9")
Cloakroom
Integral Garage - 5.92m x 3.68m (19'5" x 12'1")
First Floor Landing
Bedroom One - 5.38m x 4.06m (17'8" x 13'4")
Ensuite
Bedroom Two - 5.77m x 3.05m (18'11" x 10'0")
Ensuite
Bedroom Three - 4.06m x 4.06m (13'4" x 13'4")
Bedroom Four - 3.68m x 3.53m (12'1" x 11'7")
Bathroom - 2.51m x 2.26m (8'3" x 7'5")
Externally
Services
Tenure
Council Tax
Broadband/Mobile Phone Coverage
Disclaimer
Floorplan
EPC
To discuss this property call us on:
Market your property
with Calow Evans
Book a market appraisal for your property today. Our virtual options are still available if you prefer.