Description..
- EER: 56D/90B
- Spacious Mid Terrace Property
- Three Double Bedrooms
- Two Reception Rooms
- First Floor Bathroom
- Gas C/h & Double Glazing
- Rear Garden & Courtyard
- Village Location
- Outskirts Of Ammanford Town Centre
A spacious double-fronted terraced home located in the sought-after village of Betws, on the outskirts of Ammanford town centre—ideal for first-time buyers. This well-proportioned property offers two generous reception rooms, three double bedrooms, and a first-floor bathroom. Additional benefits include gas-fired central heating and double glazing throughout. Externally, the property features a rear courtyard and garden.
Betws is a charming village set on the edge of Betws Mountain, offering a peaceful setting while remaining conveniently close to Ammanford town centre, where a range of everyday shopping facilities can be found. The area also boasts excellent leisure amenities, including scenic walking and cycling routes, parks, and recreational grounds. The M4 motorway is easily accessible via Junction 49 at Pont Abraham, while a picturesque drive over Betws Mountain leads to Morriston and Swansea.
Accommodation:
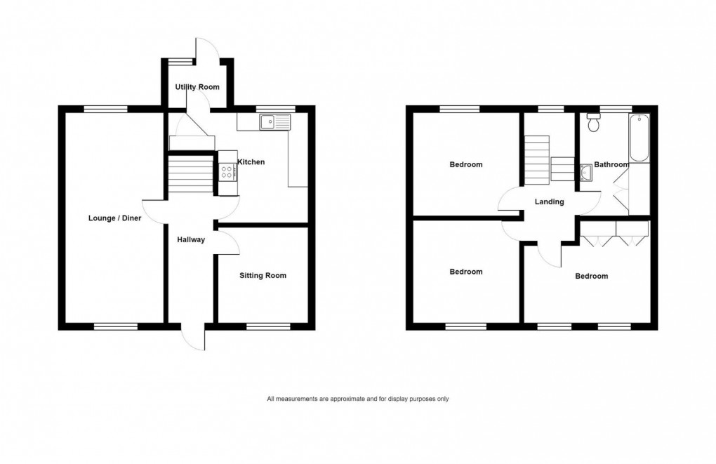
Entrance Hallway
Decorative dado rail to half way, single panel radiator, stairs to first floor.
Lounge/Dining Room - 6.65m x 3.1m (21'10" x 10'2")
Double glazed window to front & rear elevations, two single panel radiators.
Sitting Room - 3.02m x 2.84m (9'11" x 9'4")
Double glazed window to front, single panel radiator, cupboard housing wall mounted gas boiler providing domestic hot water & central heating.
Kitchen - 3.53m x 2.9m plus recess (11'7" x 9'6" plus recess)
Double glazed window to rear, single panel radiator, understairs storage cupboard, fitted with wall & base units, sink & draining board, integrated electric oven, gas hob, tiled floor, part tiled walls.
Utility
Double glazed panelled door & window to rear elevation, plumbing for washing machine, tiled floor.
Landing
Double glazed window to rear elevation, access to loft.
Bedroom One - 4.42m x 2.62m (14'6" x 8'7"/7'5")
Two double glazed windows to front elevation, single panel radiator, built in wardrobes.
Bedroom Two - 3.3m x 3.35m (10'10" x 11'0")
Double glazed window to rear elevation, double panel radiator.
Bedroom Three - 3.25m x 3.07m (10'8" x 10'1")
Double glazed window to front elevation, double panel radiator.
Bathroom - 3.3m x 2.24m (10'10" x 7'4"/4'8")
Double glazed window to rear elevation, single panel radiator, suite comprising panelled bath with electric shower over, WC, pedestal wash hand basin, storage cupboard.
Externally
Steps down to the rear to a small courtyard, timber storage shed. There is a path to the rear of the courtyard allowing pedestrian right of way to the neighbouring properties which is situated in between the courtyard and the enclosed rear garden which is mainly laid to lawn.
Services
We are advised that mains services are connected.
Tenure
Freehold
Council Tax
Band B
Directions
From our Ammanford office proceed to the traffic lights bearing right onto Wind Street. Turn left at the roundabout and proceed straight ahead at the next roundabout. When reaching the roundabout near Tesco's supermarket turn left then on the next roundabout turn right. Proceed up the hill towards Betws and continue around the sharp right hand bend. Proceed along Betws road passing the primary school whereby the property will be located on the right hand side.
Disclaimer
Every care has been taken with the preparation of particulars however please note room dimensions and floor plan's should not be relied upon and any appliances or services listed on these details have not been tested.
Floorplan
EPC
To discuss this property call us on:
Market your property
with Calow Evans
Book a market appraisal for your property today. Our virtual options are still available if you prefer.