Description..
- Viewing essential
- Larger than average semi detached
- Four bedrooms plus attic room
- Spacious modern Living
- Off road parking
- Conveniently located to schools and amenities
- Open aspect to the rear
- Potential self contained flat
- EPC - C
- Council tax band- Band C
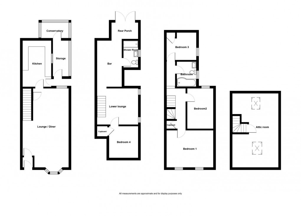
We are delighted to present this larger-than-average semi-detached property, offering generous and versatile living accommodation throughout. The home features four well-proportioned bedrooms, in addition to a useful attic room, making it ideal for growing families.
The property boasts a spacious open-plan living area, complemented by a fully refurbished basement. This lower level comprises a bedroom, lounge, shower room, and bar area—perfect for multi-generational living or as an exceptional space for entertaining guests.
Externally, the rear of the property showcases a beautifully arranged, tiered garden. This includes a patio area beneath a pergola housing a hot tub, along with a lawn and a separate decking area on the lower level—ideal for relaxing and socialising.
Further benefits include double glazing, gas central heating, and off-road parking to the front of the property.
Located in the highly convenient area of Llansamlet, the property is close to local shops, reputable schools, and offers excellent public transport links into Swansea city centre. Commuters will also appreciate the easy access to the M4 motorway, with Llansamlet railway station located within approximately 0.7 miles.
Please note an employee of Calow Evans has an interest in this property.
Porch
Lounge Diner - 7.26m x 4.22m (23'10"/26.8"(to bay) x 13'10"/10.3")
Kitchen - 4.24m x 2.62m (13'11" x 8'7")
Utility/Storage room - 3.76m x 1.47m (12'4" x 4'10")
Conservatory - 1.5m x 2.51m (4'11" x 8'3")
Landing
Bedroom 1 - 3.4m x 4.29m (11'2" x 14'1")
Bedroom 2 - 3.76m x 2.39m (12'4" x 7'10")
Bedroom 3 - 2.67m x 2.24m (8'9" x 7'4")
Bathroom - 1.68m x 2.31m (5'6" x 7'7")
Attic Room - 4.22m x 5m (13'10"/7.8" x 16'5"/7.9")
Lower lounge
Bedroom 4 - 2.9m x 2.67m (9'6" x 8'9")
Bar - 4.06m x 2.26m (13'4" x 7'5")
Shower Room - 1.35m x 2.44m (4'5" x 8'0")
Rear Porch - 1.65m x 2.44m (5'5" x 8'0")
Extenally
Services
Tenure
Council Tax
Broadband/Phone coverage
Disclaimer
Floorplan
EPC
To discuss this property call us on:
Market your property
with Calow Evans
Book a market appraisal for your property today. Our virtual options are still available if you prefer.