Description..
- No Upper Chain
- Renovated To A High Standard
- Three Double Bedrooms
- Far-Reaching Views To The Fore
- Ground Floor Shower Room & First Floor Bathroom
- Situated On A Generous Size Plot
- Potential For Building Plot/Extend Or Build Garage (stpp)
- Beautiful Kitchen With Integrated Appliances
- Ease Of Access To M4 & A48
- EPC Rating: D
A recently refurbished semi-detached home situated in the highly sought-after village of Tumble. This immaculate property offers three generously sized double bedrooms, along with a convenient ground floor shower room and utility area, complemented by a family bathroom on the first floor. The beautifully appointed, recently installed kitchen features integrated appliances and a central island, with French doors opening onto a patio area—ideal for entertaining and enjoying the garden. Occupying a generous side plot, the property presents excellent potential for further development, including the possibility to extend or construct a garage (subject to the necessary planning permissions). The rear garden offers a good degree of privacy and enjoys fantastic countryside views. Additional benefits include ample off-road parking. (Please note that the sellers have advised they are currently in the process of lowering the kerb with the local authority.)
The village of Tumble offers a range of essential amenities and is conveniently located near the A48 and Cross Hands, providing easy access to a variety of restaurants, major retailers, shops, and further everyday conveniences. The property also benefits from excellent transport links, with straightforward access to the M4 corridor, making it ideal for commuters.
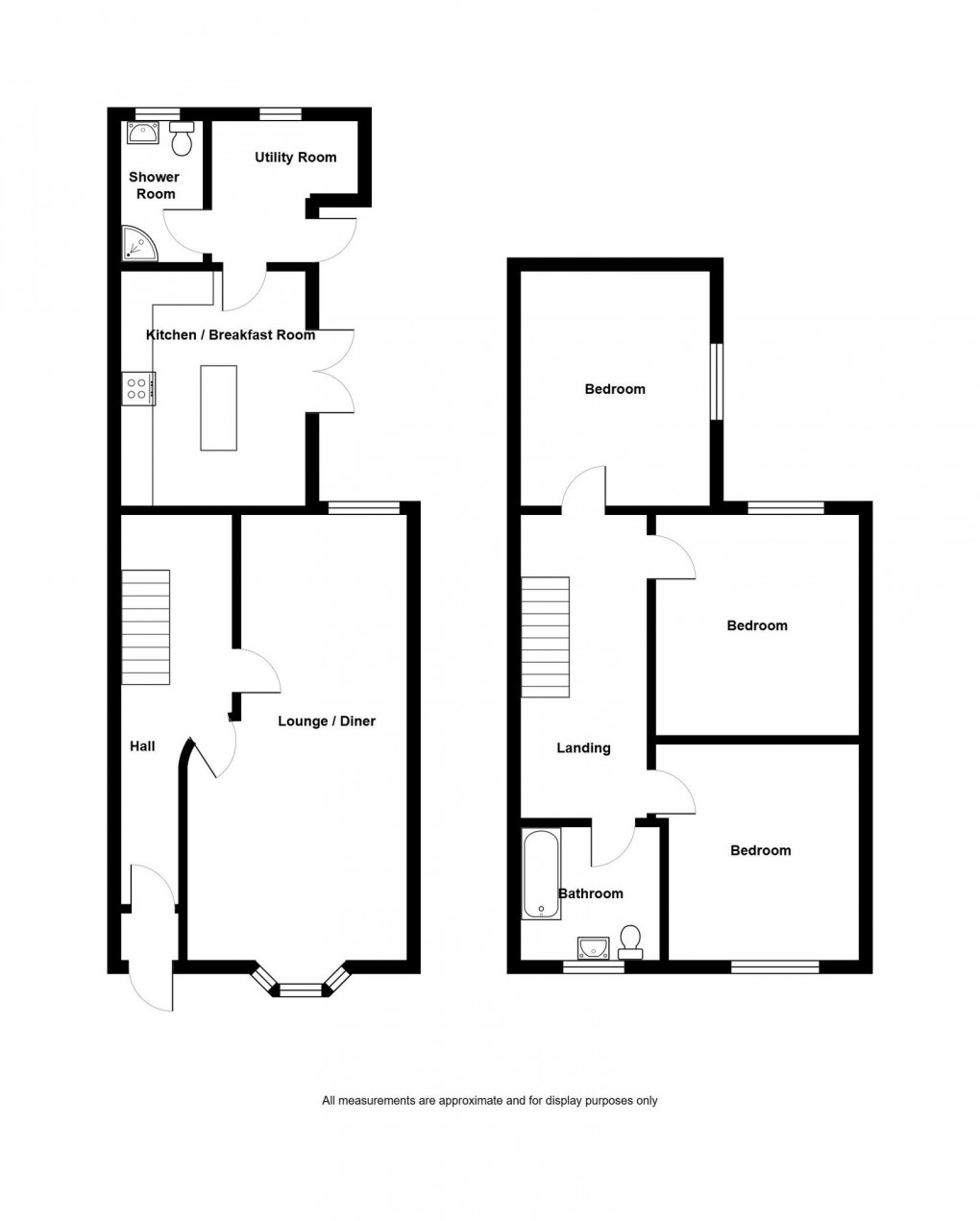
Accommodation:
Entrance Vestibule:
Entrance Hall
Lounge Diner - 7.62m x 3.66m (25'0" x 12'0"/9'10")
Kitchen/Breakfast Room - 3.96m x 2.9m (13'0" x 9'6")
Utility Room
Shower Room
Landing
Bedroom One - 3.94m x 2.97m (12'11" x 9'9"/9'4")
Bedroom Two - 3.48m x 3.12m (11'5" x 10'3")
Bedroom Three - 3.17m x 3.07m (10'5" x 10'1")
Bathroom - 2.54m x 1.75m (8'4" x 5'9")
Externally
Services
Tenure
Council Tax
Broadband/Mobile Phone Coverage
Disclaimer
Floorplan
EPC
To discuss this property call us on:
Market your property
with Calow Evans
Book a market appraisal for your property today. Our virtual options are still available if you prefer.