-
Traditional Family Home
-
Three Double Bedrooms
-
First Floor Family Bathroom
-
Larger Than Average Mature Rear Garden
-
Situated In An Elevated Position
-
Fabulous Countryside Views
-
LPG Heating & Double Glazing
-
Integral Garage & Ample Parking
-
EPC Rating: F
The property is situated in an elevated position with a driveway leading up to the house, providing ample parking. The integral garage offers both internal and garden access. Side pedestrian access leads to an additional double-glazed workshop with an adjacent toilet. Paved steps lead to a mature garden with fantastic views over the Gwendraeth Valley, comprising two main lawned areas. A central dry-stone-walled BBQ area sits adjacent to a gravelled outdoor dining space. The garden is well stocked with an abundance of trees, including fruit trees, all enclosed within high-privacy hedges, predominantly beech.
Accommodation:
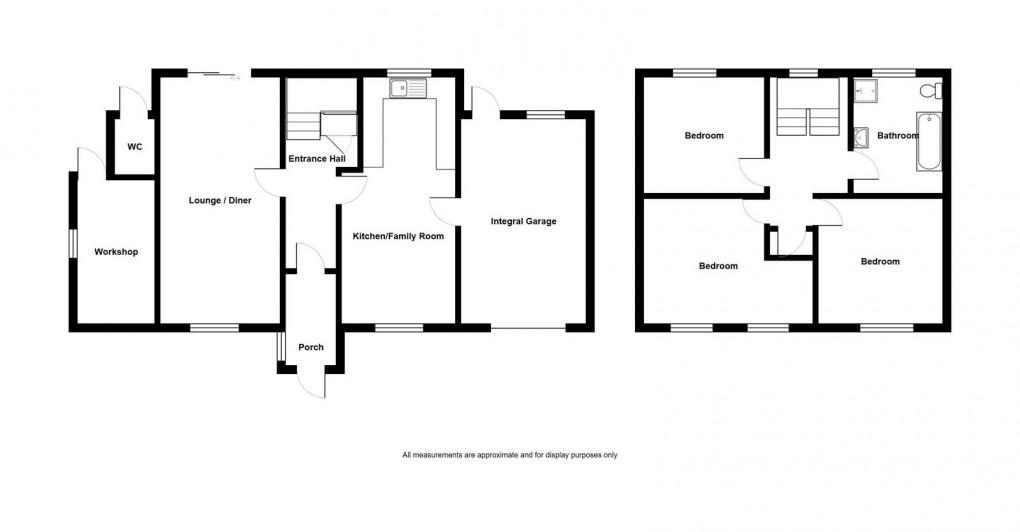
Entrance Porch
Double glazed window to side, opening to:
Entrance Hallway
Well-lit with natural light from side windows. Terracotta-tiled entrance vestibule leading into the hallway. Double panel radiator with doors branching off to living areas on either side. Stairs to the first floor with understairs storage cupboard.
Lounge Diner - 6.58m x 3.2m (21'7" x 10'6"/9'11")
Double-glazed window to front. Double-glazed patio doors to rear, opening onto a pleasant, naturally landscaped dry-stone rockery garden.
Kitchen/Family Room - 6.6m x 3.05m (21'8" x 10'0"/8'1")
Double-glazed windows to front and rear. Radiator. Kitchen fitted with wall and base units. Space for Rangemaster-style oven. Sink and draining board unit. Part-tiled walls. Door to integral garage.
First Floor Landing
Beautiful double-glazed stained-glass window to rear over radiator, leading to storage cupboard.
Bedroom One - 4.52m x 3.3m (14'10"/10'7" x 10'10")
Two double glazed windows to front, radiator.
Bedroom Two - 3.35m x 3.05m (11'0" x 10'0")
Double glazed window to front, radiator.
Bedroom Three - 3.3m x 3.2m (10'10" x 10'6")
Double-glazed window to rear with pleasant views over the expansive garden. Radiator.
Bathroom
Recently redesigned modern feature bathroom, with full-length landscape marble tiling. Oversized freestanding double-ended bathtub with central mixer taps and shower head. Expansive walk-in shower with overhead rain shower and handset. Heated mirror over matching vanity unit with stylish taps. Full-length vertical radiator and chrome towel rail. WC with soft-closure lid beneath a double-glazed frosted window to rear.
Externally
The property is situated in an elevated position with a driveway leading up to the house, providing ample parking. The integral garage offers both internal and garden access. Side pedestrian access leads to an additional double-glazed workshop with an adjacent toilet. Paved steps lead to a mature garden with fantastic views over the Gwendraeth Valley, comprising two main lawned areas. A central dry-stone-walled BBQ area sits adjacent to a gravelled outdoor dining space. The garden is well stocked with an abundance of trees, including fruit trees, all enclosed within high-privacy hedges, predominantly beech.
Integral Garage - 5.74m x 3.35m (18'10" x 11'0")
Up-and-over garage door, plumbing for washing machine, wall mounted LPG gas boiler, stable style double gazed door to rear.
Services
We are advised that mains services are connected. LPG gas central heating.
Tenure
Freehold
Council Tax
Band C
Broadband/Mobile Phone Coverage
We are advised that super-fast broadband and mobile phone coverage is available in this area.
Disclaimer
Every care has been taken with the preparation of particulars however please note room dimensions and floor plan's should not be relied upon and any appliances or services listed on these details have not been tested.